Location-plan.jpg
Maquette-site-model.jpg
Maquette-main-perspective.jpg
Residential-unit-diagram.jpg
2_0_GF-Plan.jpg
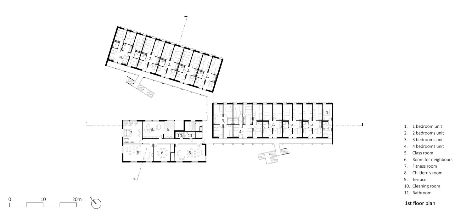
2-1_1F-plan.jpg
2-2_2F-plan.jpg
3-2_Short-section.jpg
3-1_Long-Section.jpg
Maquette-courtyard_2.jpg
prev / next